AVGFLEX FOLDING MANUAL skladacie harmonikové fasádne panely, skladacie okenice a dverné krídla, posuvné a skladacie harmonikové fasádne panely pre architektonicky čisté tienenie a dynamické obvodové prvky pre fasády, balkóny, okná a dvere. Systémové riešenia AVGFLEX s dizajnovými výplňami z hliníkových panelov, ktoré môžu byť aj perforované alebo embosované vo farebných povrchových úpravách AVG COLOR ARCHITECTURE s prémiovými kovaniami, spájajú spoľahlivú mechaniku s dizajnom „tailor-made“ pre domy, rezidenčné budovy aj komerčné stavby.
VÝHODY A POUŽITIE PRE SYSTEM AVGFLEX FOLDING MANUAL
![]()
![]()
![]()
![]()
![]()
![]()
![]()
![]()
![]()
![]()
![]()
Variabilná architektúra: Modulárna skladba krídiel (2–6 a viac podľa typu) umožňuje tienenie veľkých otvorov, rohových presklení aj dlhých fasádnych pásov. Priestorovo úsporné parkovanie balíka krídiel kolmo k osi pojazdu. Vhodné pre nové stavby aj rekonštrukcie.
![]()
![]()
![]()
![]()
![]()
![]()
![]()
![]()
![]()
![]()
![]()
Komfort & tichý chod: Presné vozíky a vodiace lišty zabezpečujú ľahké ovládanie (ručné alebo motorické) a kultivovaný chod pri každodennom používaní.
![]()
![]()
![]()
![]()
![]()
![]()
![]()
![]()
![]()
![]()
![]()
Estetika bez kompromisov: Možnosť fasádne-flush riešenia (zapustenie vedenia a prekrytie koľajníc), čisté línie a jednotný výraz fasády v zatvorenej polohe.
![]()
![]()
![]()
![]()
![]()
![]()
![]()
![]()
![]()
![]()
![]()
Odolnosť a bezpečnosť: Systémy spĺňajú príslušné normy pre exteriérové tienenie, testy životnosti a odolnosti voči vetru; dostupné sú riešenia s vyššou triedou odolnosti.
![]()
![]()
![]()
![]()
![]()
![]()
![]()
![]()
![]()
![]()
![]()
Typické aplikácie: Rodinné domy, bytové domy, administratívne budovy, retail, hotelové fasády, multifunkčné haly. Naše systémy riešia tienenie, vizuálny filter, privátne clony na lodžiách, tieniace a bezpečnostné prvky na prízemiach. Inšpiráciu ponúkajú aj realizácie so skladacími okenicami ako aj harmonikové fasádne panely s posuvnými systémami na veľkých plochách.
KREATÍVNA VÍZIA & AVGFLEX FOLDING MANUAL
AVGFLEX FOLDING MANUAL harmonikové skladacie fasádne panely a skladacie okenice tvoria dynamický „živý plášť“ budovy. Cez deň zabezpečujú tienenie, večer fasádu odľahčujú perforovaným svetelným rastrom. Kombináciou plných a perforovaných výplní, reliéfnych (embosovaných) vzorov a farieb vytvárame na mieru identitu objektu a to od minimalistickej až po výrazne dekorovanú. V režime otvorenia sa panely kompaktne „odsunú“ mimo výhľad a po „zatvorení“ nadviažu na rytmus fasády.
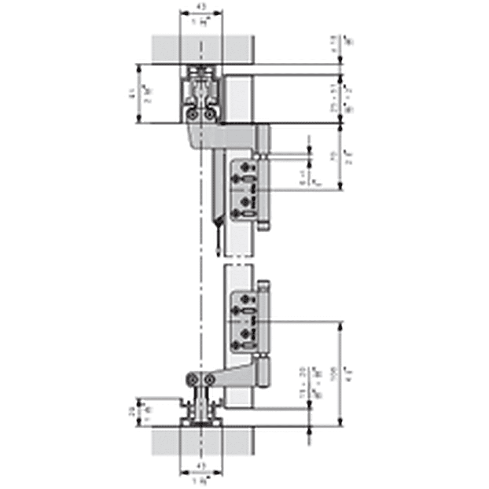
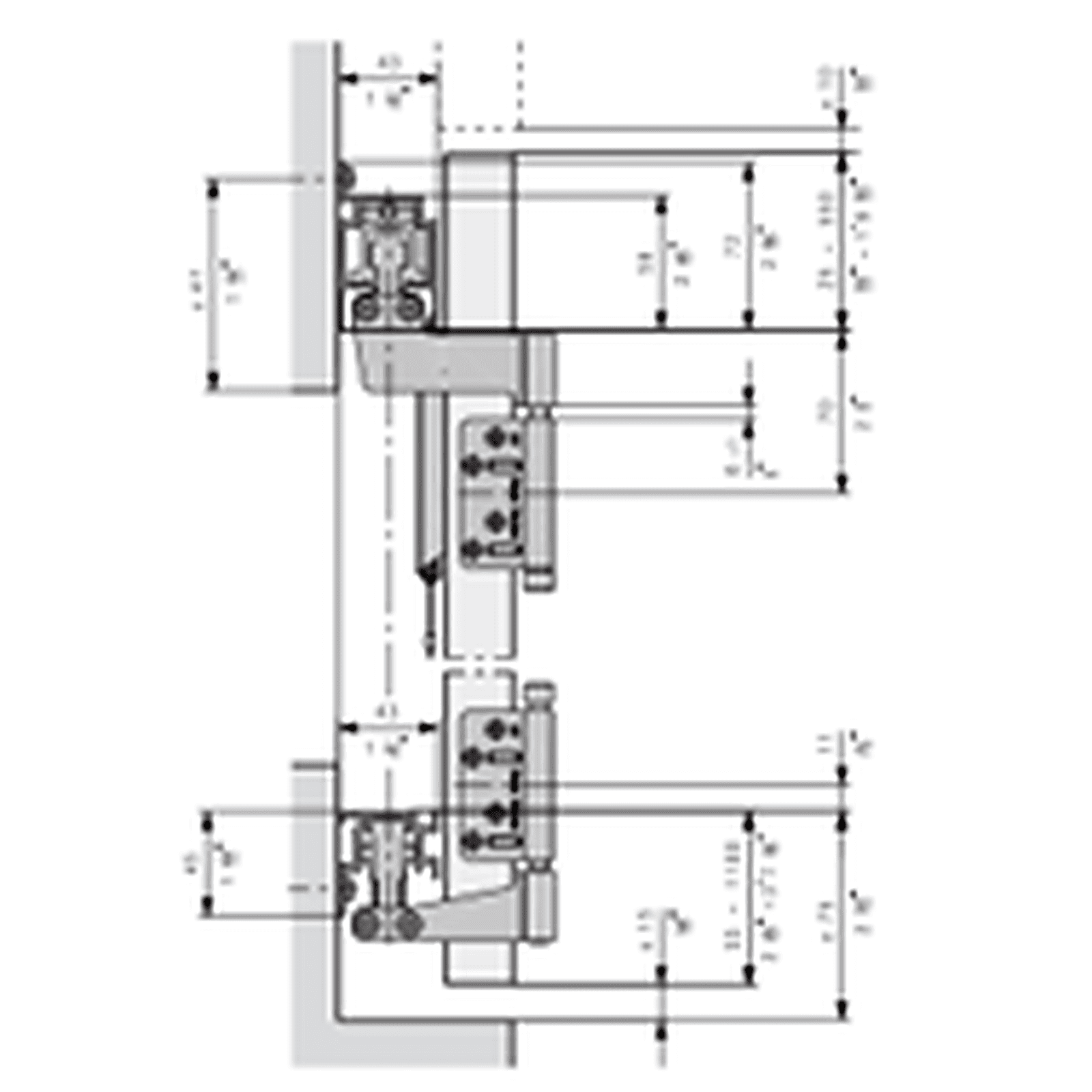
ZÁKLADNÉ TECHNICKÉ INFORMÁCIE


AVGFLEX FOLDING MANUAL
(manuálne ovládanie)
- Výška panelu/krídla: max. 3200 mm | 4000* – 5000* mm
- Šírka panelu/krídla: min. 200 – max. 600 mm | 800* mm
- Max. hmotnosť panelu/krídla: do ~30 kg s plynulým, jednoručným ovládaním vďaka UV-stabilným kladkám s klznými ložiskami | dostupné aj ľahšie verzie
- Hrúbka panelu/krídla: min. 28 mm – max. 36 mm
- Perforácia panelu/krídla: voliteľný vzor | voliteľné usporiadanie | open area 10%-50%
- Embosovanie: vzor bubble, trojuholník, kruh, štvorec | voliteľné usporiadanie
- Materiál panelu/krídla: hliník | iný na požiadanie – nerez*– corten*– aluzinok* – pozinkovaná oceľ* – hliník stucco *
- Kovanie | spojovací materiál: vodiace lišty – profily – konzoly/ hliník natural, hliník anodized (silver) | pánty – spojovací materiál/ nerez natural
- Farby: hliník s povrchovou úpravou AVG COLOR ARCHITECTURE
- Max. šírka systému: 2 x 6000 mm |10 panelov/krídel na jednu stranu | párny alebo nepárny počet
- Konfigurácie: forslide FS | inslide IS | mixslide MS | skladanie smerom von alebo dovnútra | párny alebo nepárny počet panelov/krídiel | šírky systémov až do cca 12 m
- Max. plocha: 2 x 19,2 m² | individuálne riešenia na požiadanie
- Komfort: nezávislé zaistenie pohyblivého mechanizmu pre skladacie panely/ krídla/ okenice zacvaknutím
- Estetika: frontslide FS* – koľajnice zmiznú za zatvorenými panelmi/ krídlami
- Spoľahlivosť: materiály odolné voči korózii
- Koncept: harmonikové skladacie-posuvné panely/krídla/okenice, ktoré sa odsunú a zložia do kompaktného balíka, možné parkovanie balíka v 90° uhle k osi pojazdu
- Teplotný rozsah pre prevádzku: -20 °C až 60 °C
* uvažované a plánované projektové riešenie konzultujte s technickým oddelením AVG METAL
NÁVRHY A TECHNICKÉ RIEŠENIA
![]()
![]()
![]()
![]()
![]()
![]()
![]()
![]()
![]()
![]()
![]()
Panely | krídla | okenice: Originálny dizajn v približných rozmeroch: šírka do 600 mm x výška do 3200 mm x hĺbka do 38 mm (iné požiadavky na rozmery konzultujte s technickým oddelením AVG METAL). Vzhľad môže byť voliteľný s rôznymi perforáciami alebo aj s obrazovými motívmi.
![]()
![]()
![]()
![]()
![]()
![]()
![]()
![]()
![]()
![]()
![]()
Integrácia do fasády: Hliníkové harmonikové skladacie panely | krídla | okenice je možné integrovať do prevetrávaných fasád vrátane skrytého vedenie (façade-flush).
![]()
![]()
![]()
![]()
![]()
![]()
![]()
![]()
![]()
![]()
![]()
Kovanie: Kompletné „on-building“ kovanie (horné koľajnice, vodiace lišty, pojazdové vozíky, pánty, dorazy, vodiace elementy spodného vedenia) podľa veľkosti otvorov, požadovaného komfortu a architektúry fasády.
![]()
![]()
![]()
![]()
![]()
![]()
![]()
![]()
![]()
![]()
![]()
Statika & vietor: Pri návrhu zohľadňujeme rozmery krídiel, veternú oblasť stavby a triedu odolnosti podľa EN 13659; pri veľkých plochách navrhujeme rozdelenie do sekcií a optimalizáciu parkovania balíka.
![]()
![]()
![]()
![]()
![]()
![]()
![]()
![]()
![]()
![]()
![]()
Ovládanie: Manuálne alebo motorické/automatické s možnosťou riadenia cez BMS/SMART (po dohode).
MATERIÁL
![]()
![]()
![]()
Hliníkové výplne AVGFLEX: Všetky výplne panelov | krídiel | harmonikové okenice vyrábame z hliníka – ako plné panely | kazety, alebo rámové riešenia s vložkou, alebo perforované a embosované panely | kazety. Voľba hrúbok, výstuh a perforácií, prelisov vychádza z rozmerov a zaťaženia.
![]()
![]()
![]()
![]()
![]()
Špeciálne materiály: Skladacie dverné krídla, okenice, panely/kazety alebo fasády môžeme na požiadanie po technickej konzultácii vyrobiť aj z materiálov nerez – corten – aluzinok-pozinkovaná oceľ – hliník stucco


INTEGRÁCIA S FASÁDOU
AVGFLEX FOLDING MANUAL harmonikové panely, skladacie fasádne krídla a harmonikové okenice, môžu byť navrhnuté tak, aby sa dali integrovať do kovovej predsadenej fasády AVG METAL. Vďaka tomu je možné dosiahnuť jednotný architektonický výraz naprieč celou budovou – od pevných fasádnych prvkov až po pohyblivé tienenie.
Skladacie okenice, harmonikové fasádne panely, skladacie fasádne krídla AVGFLEX FOLDING MANUAL, môžu byť vyrobené v rovnakom materiálovom, farebnom a perforovanom vyhotovení ako fasádne kazety, lamely či dizajnové profily AVG METAL. Výsledkom je fasáda, ktorá pôsobí kompaktným a esteticky koherentným dojmom, pričom pohyblivé časti sú vizuálne nerozoznateľné od pevných panelov až kým sa neotvoria.
Architekti a investori tak získavajú možnosť vytvoriť „živú fasádu“, ktorá reaguje na svetelné podmienky, súkromie a prevádzku budovy.
Pohyb hliníkových panelov | krídel | okeníc AVGFLEX FOLDING MANUAL dokáže meniť výraz stavby počas dňa a to od minimalistickej monolitickej plochy po otvorenú, vzdušnú štruktúru s výraznými perforáciami a tieňovou hrou.
AVGFLEX FOLDING MANUAL umožňuje investorom, zákazníkom, architektom a projektantom navrhovať budovy, kde sa technológia stáva dizajnom a kde sú tieniace prvky nielen funkčné, ale aj esteticky rovnocenné s fasádnym obkladom.












FARBY A POVRCHOVÉ ÚPRAVY
Ponúkame kompletné portfólio farieb a efektov AVG COLOR ARCHITECTURE: hladké/matné, jemná štruktúra, metalíza, špeciálne kolekcie a imitácie materiálov pre kovové fasády, obklady, harmonikové panely, dverné krídla, harmonikové okenice. Všetky povrchy sú vhodné do exteriéru alebo interiéru a môžeme ich dodať podľa požiadavky zákazníka alebo architekta.
INDIVIDUÁLNA PERFORÁCIA
AVGFLEX FOLDING MANUAL skladacie harmonikové fasádne panely a harmonikové okenice z hliníka môžu mať voliteľnú perforáciu (štandardné rastre, gradienty, písmo/logo, piktogramy, obrazové motívy) aj embosované vzory pre plastickú hru svetla a tieňa. Perforácie optimalizujeme na rovnováhu medzi prievzdušnosťou, tienením a tuhosťou panelu/krídla alebo na želanie pripravíme protosériu. Výrobná a dizajnová logika AVGFLEX FOLDING MANUAL môže byť kompatibilná s návrhom kovových fasád alebo perforovaných fasád, kde môžeme zachovať jednotný výraz naprieč obvodovým plášťom budovy.
AVG METAL
AVG METAL, VÁŠ PARTNER
Kontaktujte nás pre váš projekt
AVG METAL sa špecializuje na poskytovanie komplexných služieb v oblasti dodávok a výroby kovových produktov pre modernú architektúru a priemysel. S našim serióznym prístupom, know-how a R&D ponúkame architektom, projektantom, partnerom a zákazníkom širokú škálu kovových riešení pre priemysel, moderné fasády, obklady, kovové profily a ďalšie produkty, ktoré spĺňajú najvyššie štandardy kvality a estetiky.























